Omschrijving
Algemeen: Beschikbaar een hoogwaardig afgewerkte nieuwbouw bedrijfspand met kantoor (hoekligging) gelegen op een zichtlocatie aan de Van der Waalsstraat direct naast de Olof Palmelaan en de Australiëweg aan de rand van de woonwijk Oosterheem. Het betreft een uiterst duurzaam gasloos bedrijfspand (energielabel A+++).
Bereikbaarheid: De Van der Waalsstraat ligt noordelijk van het Prismaterrein aan de rand van de woonwijk Oosterheem in Zoetermeer en is eenvoudig bereikbaar vanaf Rijksweg A12 via de N209 en de verlengde Australiëweg (ringweg door Zoetermeer). Via de N470/471 zijn ook snelwegen A13 en A20 snel bereikbaar.
Door de ligging nabij het station Javalaan van de RandstadRail, zijn er uitstekende verbindingen. Het centrum van Zoetermeer en Den Haag is daardoor zeer goed bereikbaar. Hierdoor is het project perfect te bereiken voor uw klanten, leveranciers en medewerkers.
Adres: Van der Waalsstraat 42B, 2721 KX te Zoetermeer.
Bouwjaar: 2025/2026.
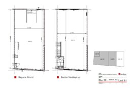
Metrage:
Begane grond
Circa 197 m² bvo bedrijfs-/showroomruimte
Eerste verdieping
Circa 197 m² bvo kantoorruimte
Parkeren: 5 parkeerplaatsen gelegen op eigen terrein. Tevens zijn er goede parkeermogelijkheden aan de openbare weg.
Bestemming: Bestemmingsplan Bedrijventerrein Oosterhage / Businesspark Oosterheem, onherroepelijk vastgesteld op 16-08-2013.
De voor 'Bedrijventerrein' aangewezen gronden zijn bestemd voor onder andere:
a. bedrijven behorende tot en met milieucategorie 3.1 van de in Bijlage 1 bij deze regels opgenomen Lijst van Bedrijfsact.;
b. bedrijfsgebonden detailhandel;
c. bedrijfsgebonden kantoren met een bvo dat minder bedraagt dan 50% van het totale bvo van het bedrijf en minder is dan 3.000 m2 bvo;
d. afhaalcentrum, met een afhaalpunt van maximaal 20 m² bvo.
Opleveringsniveau: Het hoogwaardig afgebouwde bedrijfspand met kantoor wordt opgeleverd in huidige staat en is onder andere voorzien van:
Bedrijfsruimte
* vrije hoogte circa 4,20 m1;
* elektrisch bedienbare overheaddeur 4,0 x 4,2 m (b x h);
* gevlinderde betonvloer;
* industriële LED verlichting;
* toiletgroep;
* meterkast;
* glazen pui aan voorzijde;
* afgewerkte entree v.v. schoonloopmat;
* gestoffeerde trap;
* separate loopdeur;
* mantelbuis t.b.v. elektrische auto's;
* buitenverlichting LED.
Kantoorruimte
* visgraat PVC vloerafwerking;
* ruime daglichttoetreding;
* te openen draai-/kiepramen v.v. HR ++ isolatieglas;
* toiletgroep(en);
* elektra- en data-aansluitpunten;
* pantry v.v. boiler, koelkast en magnetron;
* diverse airco-units t.b.v. verwarmen en koelen;
* vloerverwarming;
* WTW-installatie.
HUURVOORWAARDEN
Huurprijs: € 69.500,- per jaar te vermeerderen met de wettelijk verschuldigde omzetbelasting.
Huurtermijn: 5 jaar met de mogelijkheid de huurovereenkomst telkenmale met 5 jaar te verlengen.
Opzegtermijn: 12 maanden voor expiratie huurovereenkomst per aangetekend schrijven of bij deurwaardersexploot.
Oplevering: Per direct mogelijk.
Huurbetaling: Per maand vooruit.
Huurprijsaanpassing: Jaarlijks, zal per huuringangsdatum, voor het eerst 12 maanden na huuringangsdatum, de huurprijs worden aangepast op basis van de wijziging van het maandprijsindexcijfer volgens de consumentenprijsindex (CPI) reeks alle huishoudens (2015 = 100), gepubliceerd door het Centraal Bureau voor de Statistiek (CBS).
Service- en energiekosten: De servicekosten bedragen € 100,-- per maand excl. BTW als voorschot voor de kosten van:
- jaarlijkse inspectie en onderhoud airconditioning;
- jaarlijkse inspectie en onderhoud overheaddeur;
- periodiek terrein en groenonderhoud vaste bijdrage in de VvE
- eventueel overige kosten benodigd voor het uitvoeren van het beheer
- administratiekosten ad 5% over de hierboven genoemde leveringen en diensten.
Huurder dient zelf zorg te dragen voor het afsluiten van leveringscontracten voor warmte, water en elektra bij de desbetreffende nutsbedrijven.
Huurovereenkomst: Standaard huurovereenkomst kantoorruimte en andere bedrijfsruimte in de zin van artikel 7:230a BW, vastgesteld door de Raad van Onroerende Zaken (ROZ) in januari 2015. Van deze huurovereenkomst maken deel uit de algemene bepalingen kantoorruimte en andere bedrijfsruimte in de zin van artikel 7:230a BW, welke op 17 februari 2015 gedeponeerd zijn bij de griffie van de rechtbank Den Haag en aldaar zijn ingeschreven onder nummer 15/21.
Zekerheidsstelling: Bij ondertekening van de huurovereenkomst, zal huurder een bankgarantie stellen ter grootte van drie maanden huurverplichting te vermeerderen met (eventuele) servicekosten en de wettelijk verschuldigde omzetbelasting.
Voorbehoud:
- positief kredietinformatierapport ter beoordeling van verhuurder;
- goedkeuring directie verhuurder.
Kenmerken
Overdracht
- Huurprijs
- € 69.500,- p.j. (21% BTW)
- Servicekosten
- € 100,- p.m.
- Status
- beschikbaar
- Aanvaarding
- direct
Bouw
- Type
- Bedrijfsruimte
- Soort bouw
- nieuwbouw
- Bouwjaar
- 2025, 2026
- Onderhoud binnen
- uitstekend
- Onderhoud buiten
- uitstekend
Locatie
- Ligging
- bedrijventerrein
- Snelweg afrit
- 1000 m - 1500 m
- Bushalte
- < 500 m
Bedrijfshal
- Oppervlakte
- 197 m²
- Vrije hoogte
- 420 cm
- Voorzieningen
- Betonvloer, Overhead deuren, Pantry, Toilet
Kantoorruimte
- Oppervlakte
- 197 m²
- Verdiepingen
- 2
- Voorzieningen
- Te openen ramen, Airco
Parkeren
- Niet overdekt
- 5




















