Omschrijving
Algemeen: Het betreft een winkelruimte op een gewilde locatie aan het statige Noordeinde met tal van prachtige monumenten, waaronder het Paleis Noordeinde met haar paleistuinen.
Het Noordeinde is gelegen in het zogenoemde "Royal Shopping District The Hague" (Noordeinde, Hoogstraat en Plaats), een uniek winkelgebied in de historische binnenstad van Den Haag met een mooie mix tussen o.a. luxury fashion, galeries, interieur en design, juweliers en horecagelegenheden. Winkelketens zoals Schaap & Citroen, Zara Home, Oger, Marc O'Polo, Cavallaro en Pauw zijn er gevestigd.
Voor extra informatie over het winkelgebied bezoek de website: www.hetnoordeinde.nl.
Bereikbaarheid: De bereikbaarheid per openbaar vervoer is prima. De bus- en tramhalten aan de Kneuterdijk liggen op loopafstand van het gehuurde. Het centraal station is per openbaar vervoer binnen vijf minuten bereikbaar.
Adres: Noordeinde 40C, 2514 GJ te Den Haag.
Kadastrale gegevens:
Gemeente: 's-Gravenhage
Sectie: D
Nummer: 1708
Bouwjaar: Omstreeks 1922.
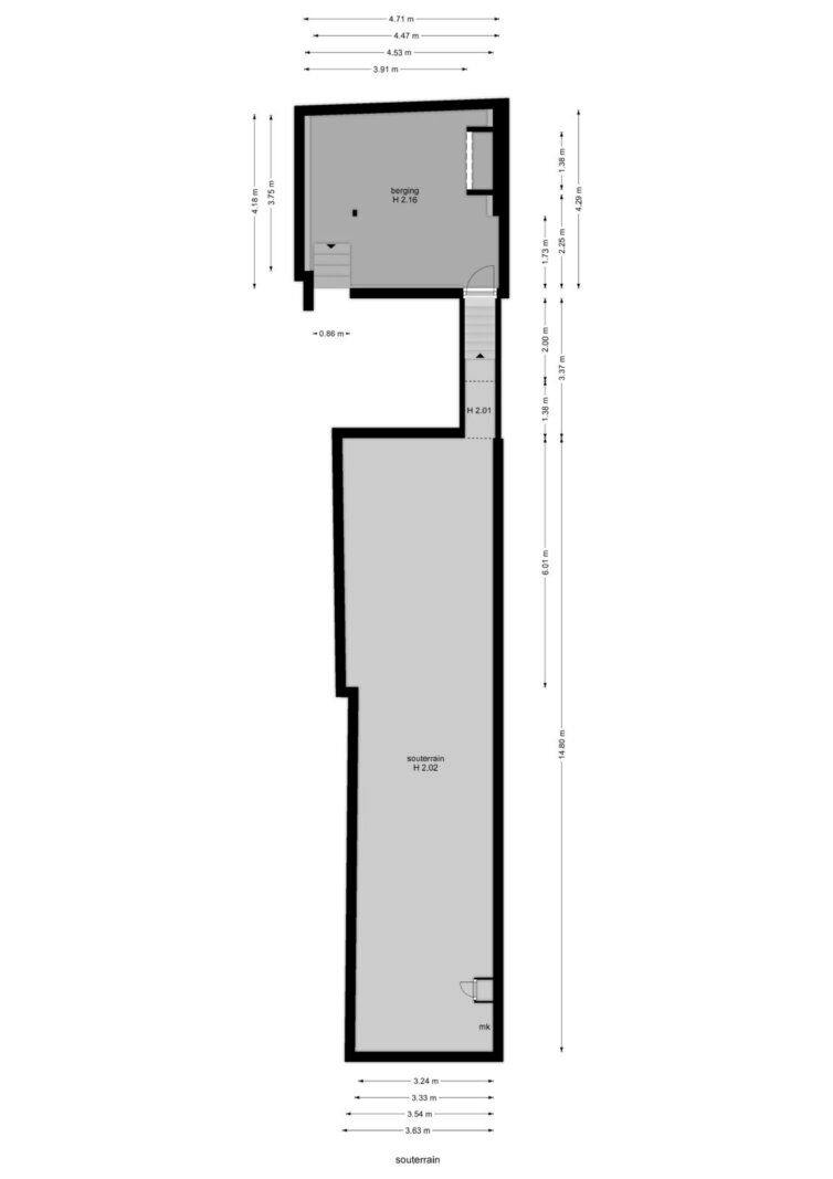
Metrage: Het gehuurde omvat in totaal circa 178,2 m² b.v.o. welke als volgt is verdeeld:
Winkelruimte begane grond : ca. 77,9 m² b.v.o.
Entresolvloer: ca. 22,4 m² b.v.o.
Kelder (stahoogte en droog): ca. 77,9 m² b.v.o.
de oppervlakte is gemeten volgens NEN 2580 .
Parkeren: In de directe omgeving zijn op loopafstand diverse parkeergarages gelegen zoals aan Noordeinde, Parkstraat en Torenstraat.
Frontbreedte: Circa 4,5 meter.
Bestemming: Bestemmingsplan St. Jacobskerk e.o. vastgesteld d.d. 17-10-2013.
De voor 'Gemengd - 1' aangewezen gronden zijn bestemd voor:
a. detailhandel;
b. dienstverlening;
c. horeca "licht";
Energielabel: Label A++.
Opleveringsniveau: De winkelruimte wordt opgeleverd in huidige staat onder andere voorzien van een rolluik. Verhuur op basis van casco opleveringsniveau. Alle thans aanwezige voorzieningen worden "om niet" aan huurder ter beschikking gesteld. Huurder is zelf verantwoordelijk voor onderhoud en vervanging hiervan.
HUURVOORWAARDEN
Huurprijs: € 4.500,-- per maand te vermeerderen met de wettelijk verschuldigde omzetbelasting.
Huurtermijn: 5 jaar met de mogelijkheid de huurovereenkomst telkens met 5 jaar te verlengen.
Opzegtermijn: 12 maanden voor expiratie huurovereenkomst per aangetekend schrijven of bij deurwaardersexploot.
Oplevering: In overleg, omstreeks 1 juni 2026.
Huurbetaling: Per kwartaal vooruit.
Bijdrage bedrijveninvesteringszone (BIZ): Het winkelgebied maakt onderdeel uit van een bedrijveninvesteringszone (BIZ). De bijdrage bedraagt ca. € 550,- exclusief BTW per jaar.
Huurprijsaanpassing: Jaarlijks, zal per huuringangsdatum, voor het eerst 12 maanden na huuringangsdatum, de huurprijs worden aangepast op basis van de wijziging van het maandprijsindexcijfer volgens de consumentenprijsindex (CPI) reeks alle huishoudens (2015 = 100), gepubliceerd door het Centraal Bureau voor de Statistiek (CBS).
Service- en energiekosten: Het gehuurde is geheel zelfstandig, derhalve zijn geen leveringen of diensten door of vanwege verhuurder van toepassing. Huurder dient zelf zorg te dragen voor de aanvraag en levering van gas, water en elektra in het gehuurde.
Huurovereenkomst: Standaard huurovereenkomst winkelruimte en andere bedrijfsruimte in de zin van artikel 7:290 BW, Model door de Raad voor Onroerende Zaken (ROZ) op 14 december 2022 vastgesteld en op 19 december 2022 gedeponeerd bij de griffie van de rechtbank te Den Haag en aldaar ingeschreven onder nummer 2022/36 en tevens gepubliceerd op de website www.roz.nl.
Zekerheidstelling: Bij ondertekening van de huurovereenkomst, zal huurder een bankgarantie stellen ter grootte van drie maanden huurverplichting te vermeerderen met (eventuele) servicekosten en de wettelijk verschuldigde omzetbelasting.
Voorbehoud:
- positief kredietinformatierapport ter beoordeling van verhuurder;
- goedkeuring directie verhuurder.
Kenmerken
Overdracht
- Huurprijs
- € 4.500,- p.m. (21% BTW)
- Status
- beschikbaar
- Aanvaarding
- in overleg, Omstreeks 1 juni 2026
Bouw
- Type
- Winkelruimte
- Soort bouw
- bestaande bouw
- Bouwjaar
- 1906-1930
- Onderhoud binnen
- goed
- Onderhoud buiten
- goed
- Energielabel
- A++
Locatie
- Ligging
- winkelgebied stadscentrum
- Snelweg afrit
- 1000 m - 1500 m
- NS station
- 1000 m - 1500 m
- Bushalte
- < 500 m
- Tramhalte
- < 500 m
Winkelruimte
- Oppervlakte
- 178 m²
- Verkoopvloeropp.
- 100 m²
- Perceelopp.
- 114 m²
- In units vanaf
- 178
- Front breedte
- 450 cm
- Verdiepingen
- 2
- Welstandsklasse
- A1
- Branche beperking
- ja
- Horeca toegestaan
- ja
- Overname personeel
- nee





















