Omschrijving
Algemeen: Het project "Buitenhof" is gelegen op één van de mooiste commerciële locaties van Zoetermeer op een dominante zichtlocatie aan de Van Leeuwenhoeklaan en de
J.L. van Rijweg direct op loopafstand van het Stadshart.
Het project is ontworpen om twee functies optimaal naast elkaar te huisvesten: te weten Aangenaam Werken en Plezierig Wonen.
Inmiddels hebben diverse gerenommeerde bedrijven als onder andere Schep Vastgoedmanagers, Olympia Nederland, Impegno Nederland , Direct Minds, Ad Astra en Hair Vision zich in het project gehuisvest.
Bereikbaarheid: De bereikbaarheid is uitstekend te noemen, de bus stopt voor de deur en het station van de RandstadRail ligt direct om de hoek. Het project "Buitenhof" is gesitueerd naast het "Stadshart" in het hart van Zoetermeer.
Het grootste winkelcentrum van Zoetermeer met een groot aanbod van diverse winkels (Media Markt, Albert Heijn XL, Primark etc.) met vele bezoekers uit de regio Haaglanden.
Ook met eigen vervoer is men binnen enkele minuten op de Afrikaweg die rechtstreeks in verbinding staat met de A-12 naar Den Haag en Utrecht.
Adres: J.L. van Rijweg 68-70, 2713 JA te Zoetermeer.
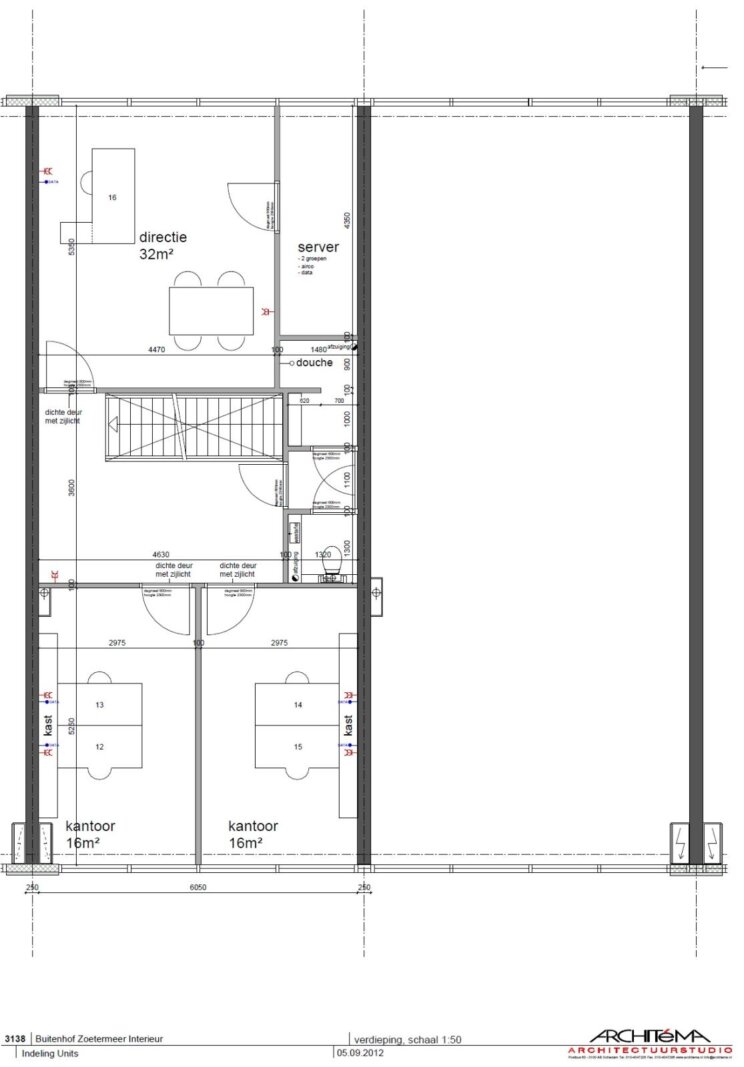
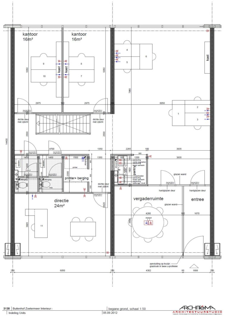
Metrage: Ca. 273 m² verdeeld over de begane grond (ca. 182m²) en de eerste verdieping (ca. 91m²).
Parkeren: Het ruime voorterrein en de goede parkeermogelijkheden op het eigen binnenterrein dragen bij tot het Aangename Werkklimaat in dit project. Er zijn algemene parkeerplaatsen gereserveerd ten behoeve van bezoekers. Bij deze kantoorunit behoren 5 parkeerplaatsen op eigen terrein.
Opleveringsniveau: Het kantoorpand heeft een hoogwaardig opleveringsniveau en is voorzien van onder andere:
* representatieve entree;
* systeemplafond v.v. energiezuinige verlichtingsarmaturen;
* pantry;
* indeling door middel van (systeem)scheidingswanden;
* vloerbedekking (éénmalige verstrekking);
* serverruimte;
* dames-/ herentoiletgroep begane grond en toilet op de eerste verdieping;
* douche-/ toiletruimte op de eerste verdieping;
* verwarming en airco door middel van plafondunits;
* mechanische ventilatie;
* kabel- en wandgoten deels v.v. databekabeling;
* brandmeld- en ontruimingsinstallatie;
* aluminium kozijnen v.v. HR ++ glas;
* elektrisch bedienbare zonnescreens.
HUURVOORWAARDEN
Huurprijs kantoorruimte: € 3.200,- per maand te vermeerderen met de wettelijk verschuldigde omzetbelasting.
Huurprijs parkeren: € 750,- per parkeerplaats per jaar te vermeerderen met de wettelijk verschuldigde omzetbelasting.
Huurtermijn: 5 jaar met de mogelijkheid de huurovereenkomst telkenmale met 5 jaar te verlengen.
Opzegtermijn: 12 maanden voor expiratie huurovereenkomst per aangetekend schrijven of bij deurwaardersexploot.
Oplevering: Op korte termijn mogelijk.
Huurbetaling: Per maand vooruit.
Huurprijsaanpassing: Jaarlijks, zal per huuringangsdatum, voor het eerst 12 maanden na huuringangsdatum, de huurprijs worden aangepast op basis van de wijziging van het maandprijsindexcijfer volgens de consumentenprijsindex (CPI) reeks alle huishoudens (2015 = 100), gepubliceerd door het Centraal Bureau voor de Statistiek (CBS).
Service- en energiekosten:€ 225,-- per maand als voorschot te voldoen met naverrekening voor de kosten van onder andere:
* het schoonhouden van de buitengevel inclusief de beglazing van het gehuurde (buitenzijde);
* levering van energie en water voor gemeenschappelijke doeleinden als verlichting;
* het onderhoud van (gemeenschappelijke) tuinen, beplantingen, terreinen, wegen, parkeerplaats(en);
* de op onderhavige leveringen en diensten drukkende beheersadministratiekosten van 5%.
Huurovereenkomst: Standaard huurovereenkomst kantoorruimte en andere bedrijfsruimte in de zin van artikel 7:230a BW, vastgesteld door de Raad van Onroerende Zaken (ROZ) in januari 2015. Van deze huurovereenkomst maken deel uit de algemene bepalingen kantoorruimte en andere bedrijfsruimte in de zin van artikel 7:230a BW, welke op 17 februari 2015 gedeponeerd zijn bij de griffie van de rechtbank Den Haag en aldaar zijn ingeschreven onder nummer 15/21.
Zekerheidsstelling: Bij ondertekening van de huurovereenkomst, zal huurder een bankgarantie stellen ter grootte van drie maanden huurverplichting te vermeerderen met servicekosten en de wettelijk verschuldigde omzetbelasting.
Voorbehoud:
- positief kredietinformatierapport ter beoordeling van verhuurder;
- goedkeuring directie verhuurder.
Kenmerken
Overdracht
- Huurprijs
- € 3.200,- p.m. (21% BTW)
- Servicekosten
- € 225,- p.m.
- Status
- beschikbaar
- Aanvaarding
- in overleg, op korte termijn mogelijk.
Bouw
- Type
- Kantoorruimte
- Soort bouw
- bestaande bouw
- Bouwjaar
- 2009
- Onderhoud binnen
- goed
- Onderhoud buiten
- goed
- Energielabel
- A
Locatie
- Ligging
- kantorenpark, woonwijk
- Snelweg afrit
- 500 m - 1000 m
- Bushalte
- < 500 m
- Tramhalte
- 500 m - 1000 m
Kantoorruimte
- Oppervlakte
- 273 m²
- Verdiepingen
- 2
- Voorzieningen
- Inbouwarmaturen, Kabelgoten, Kamerindeling, Pantry, Systeemplafond, Te openen ramen, Toilet, Verwarming, Airco, Mechanische ventilatie
- In units vanaf
- 273
- Turn key
- nee
Parkeren
- Niet overdekt
- 5
- Prijs niet overdekt
- € 750,-





















