Omschrijving
Algemeen: Aan de Italiëlaan midden in het Stadshart van Zoetermeer is de imposante woontoren met een tweetal commerciële ruimtes op de begane grond genaamd SAM volop in aanbouw. Deze opvallende eyecatcher is een ode aan architect en stedenbouwkundige Samuel van Embden, die in 1962 aan de wieg stond van de bouw van de nieuwe stad Zoetermeer. Een iconische toren die stevig met beide benen op de grond staat, maar tegelijkertijd z'n kop in de wolken heeft. Een heerlijke plek voor jong en oud. Voor nu en de toekomst.
Met 23 verdiepingen is SAM een niet te missen landmark in de stad. Wat gelijk opvalt in het strakke, stoere ontwerp van de woontoren zijn de groene buitenterrassen en de verspringende, ruime balkons. Door de dynamische, schegvormige opzet heeft SAM vanuit elke hoek een andere, unieke uitstraling.
Zie ook: https://samzoetermeer.nl/
Bereikbaarheid: De commerciële ruimtes zijn zowel met openbaar vervoer (bus en RandstadRail) als met eigen vervoer uitstekend bereikbaar. De unit is direct gelegen aan de hoofdtoegangsweg naar het Stadstheater en het nieuwe horecaplein.
Adres: Italiëlaan 27-1 en 27-2 te Zoetermeer
Bouwjaar: 2025/2026.
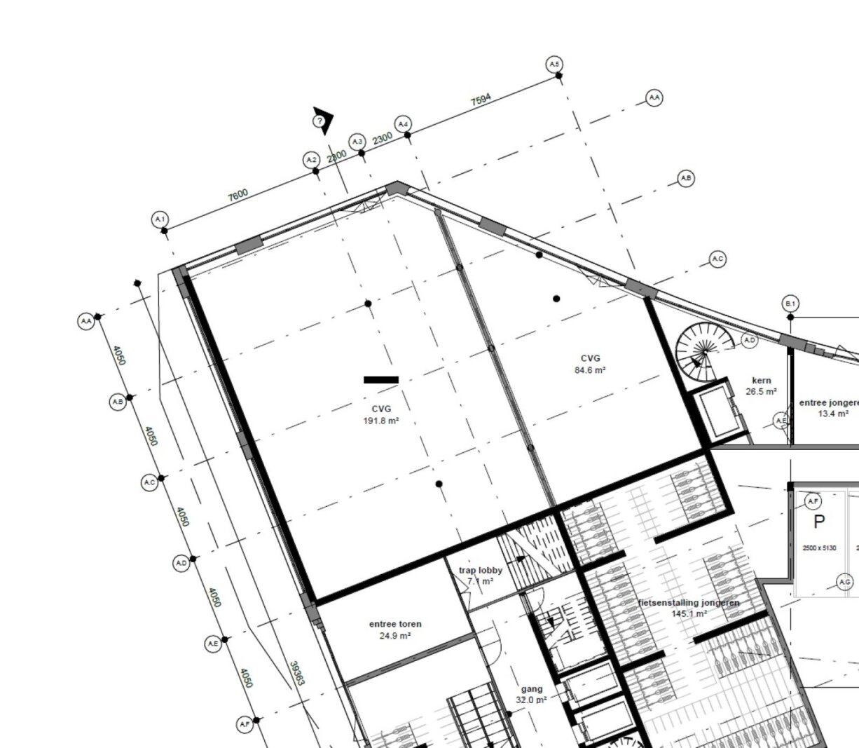
Metrage:
Italiëlaan 27-1 circa 217m² b.v.o. op de begane grond
Italiëlaan 27-2 circa 88m² b.v.o. op de begane grond
Bestemming: De commerciële ruimten hebben een zeer ruime bestemming en zijn geschikt voor onder andere:
- maatschappelijke voorzieningen;
- ambachtelijke bedrijven;
- leisure;
- sport;
- dienstverlening;
- kantoren.
Ondergeschikte horeca is (onder voorwaarden) toegestaan.
Opleveringsniveau: De commerciële ruimten zullen casco worden opgeleverd.
Op aanvraag kunnen wij u van nadere informatie omtrent het opleveringsniveau voorzien.
HUURVOORWAARDEN
Huurprijzen:
Italiëlaan 27-1 € 1.800,- per maand
Italiëlaan 27-2 € 800,- per maand
De huurprijzen dienen te worden vermeerderd met de wettelijk verschuldigde omzetbelasting.
Huurtermijn: 10 jaar met de mogelijkheid de huurovereenkomst telkenmale met 5 jaar te verlengen.
Opzegtermijn: 12 maanden voor expiratie huurovereenkomst per aangetekend schrijven of bij deurwaardersexploot.
Oplevering: Naar huidige verwachting omstreeks mei 2026.
Huurbetaling: Per maand vooruit.
Huurprijsaanpassing: Jaarlijks, zal per huuringangsdatum, voor het eerst 12 maanden na huuringangsdatum, de huurprijs worden aangepast op basis van de wijziging van het maandprijsindexcijfer volgens de consumentenprijsindex (CPI) reeks alle huishoudens (2015 = 100), gepubliceerd door het Centraal Bureau voor de Statistiek (CBS).
Servicekosten: Het gehuurde is geheel zelfstandig en er zijn geen bijkomende leveringen en diensten door of vanwege verhuurder van toepassing. Huurder dient zelf zorg te dragen voor het afsluiten van leveringscontracten voor warmte, water, elektra en data (internet) bij de desbetreffende (nuts)bedrijven.
Huurovereenkomst: Standaard huurovereenkomst kantoorruimte en andere bedrijfsruimte in de zin van artikel 7:230a BW, vastgesteld door de Raad van Onroerende Zaken (ROZ) in januari 2015. Van deze huurovereenkomst maken deel uit de algemene bepalingen kantoorruimte en andere bedrijfsruimte in de zin van artikel 7:230a BW, welke op 17 februari 2015 gedeponeerd zijn bij de griffie van de rechtbank Den Haag en aldaar zijn ingeschreven onder nummer 15/21.
Zekerheidsstelling: Bij ondertekening van de huurovereenkomst, zal huurder een bankgarantie stellen of waarborgsom voldoen ter grootte van drie maanden huurverplichting te vermeerderen met servicekosten en de wettelijk verschuldigde omzetbelasting.
Overige voorwaarden: Huurder dient zich te conformeren aan het huishoudelijk reglement.
Voorbehoud:
- positief kredietinformatierapport ter beoordeling van verhuurder;
- positieve Customer Due Diligence (CDD) ter beoordeling van verhuurder;
- definitieve goedkeuring directie verhuurder.
Kenmerken
Overdracht
- Huurprijs
- € 1.800,- p.m. (21% BTW)
- Status
- beschikbaar
- Aanvaarding
- in overleg, omstreeks mei 2026
Bouw
- Type
- Bedrijfsruimte
- Soort bouw
- nieuwbouw
- Bouwjaar
- 2025, 2026
- Onderhoud binnen
- goed
- Onderhoud buiten
- goed
Locatie
- Ligging
- winkelgebied stadscentrum
- Snelweg afrit
- 500 m - 1000 m
- Bushalte
- < 500 m
- Tramhalte
- < 500 m
Bedrijfshal
- Oppervlakte
- 217 m²
- In units vanaf
- 88 m²








