Omschrijving
Algemeen: Het hoogwaardige afgewerkte bedrijfspand is gelegen op het bedrijventerrein "Rokkehage" aan de rand van het oude centrum (wijk 12/ Dorp) te Zoetermeer.
Bereikbaarheid: Het bedrijventerrein "Rokkehage" is door zijn directe ligging aan de rijksweg A-12 (Den Haag _ Utrecht v.v.) en nabij de ring Oostweg - Australiëweg - Afrikaweg, welke diverse woonwijken in Zoetermeer met elkaar verbindt, uitstekend bereikbaar. Tevens sluit de nabij gelegen N-470 (Zoetermeer - Rotterdam - Delft) prima aan op de A-13 (Den Haag - Rotterdam v.v.).
Adres: Industrieweg 3H, 2712 LA te Zoetermeer.
Kadastrale gegevens:
Gemeente: Zegwaard
Sectie: E
Nummer: 1828 A8
Bouwjaar: Omstreeks 2013.
Metrage: Totaal circa 150 m² b.v.o en als volgt verdeeld:
Begane grond ca. 60 m² b.v.o. bedrijfsruimte
Entresolvloer ca. 30 m² b.v.o. opslagruimte
Verdieping ca. 60 m² b.v.o. kantoorruimte
Parkeren: 2 parkeerplaatsen op eigen terrein.
Bestemming: De voor 'Bedrijf' aangewezen gronden zijn bestemd voor:
a. bedrijven tot en met categorie 2 van de in de bijlagen bij deze regels opgenomen Lijst van bedrijfsactiviteiten Zegwaartseweg.
Opleveringsniveau: De bedrijfsunit wordt opgeleverd in huidige staat en is voorzien van onder andere:
- geïsoleerde gevelbeplating;
- sendzimir stalen dakplaten voorzien van isolatie en bitumineuze dakbedekking;
- isolatiewaarde (Rc-waarde) van 2,5 m² K/W;
- betonvloer maximale vloerbelasting van 1.500 kg/m² (begane grond);
- industriële verlichting;
- luxe toilet op de begane grond en op de verdieping;
- wasbak;
- ingerichte meterkast;
- houten entresolvloer;
- hardhouten raam- en deurkozijnen;
- te openen ramen;
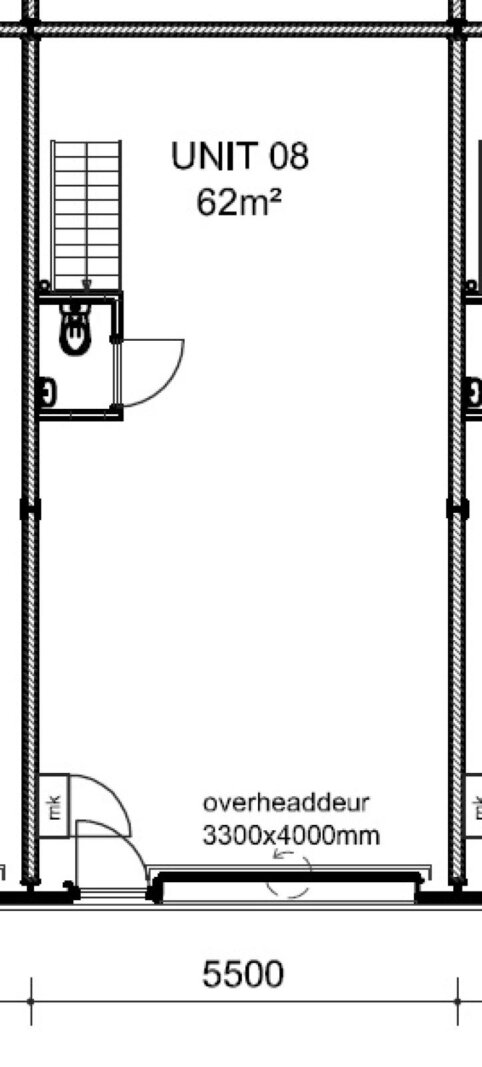
- handmatig bedienbare overheaddeur (circa 3,3m breed x circa 4m hoog);
- loopdeur;
- luxe pantry voorzien van inbouwapparatuur;
- CV- installatie middels radiatoren (Remeha Avanta);
- vloerbedekking;
- zonwering (plisée);
- systeemplafond voorzien van inbouwverlichting;
- airco-unit (kantoorruimte);
- de wanden (kantoor) zijn rondom volledig geïsoleerd d.m.v. voorzetwanden;
- buitenverlichting.
VvE bijdrage: € 93,08 per maand.
KOOPVOORWAARDEN
Koopsom: € 299.000,- k.k. te vermeerderen met de wettelijk verschuldigde omzetbelasting.
Transportdatum: In overleg, op korte termijn mogelijk.
Koopovereenkomst: NVM BOG koopakte.
Zekerheidsstelling: Bij ondertekening van de koopovereenkomst zal koper ter meerdere zekerheid voor de nakoming van zijn verplichtingen een waarborgsom ter grootte van 10 % van de koopsom voldoen op rekening van de notaris.
Notaris: Nader door koper te bepalen.
Kenmerken
Overdracht
- Vraagprijs
- € 299.000,- k.k. (21% BTW)
- Status
- beschikbaar
- Aanvaarding
- in overleg, Op korte termijn mogelijk.
Bouw
- Type
- Bedrijfsruimte
- Soort bouw
- bestaande bouw
- Bouwjaar
- 2013
- Onderhoud binnen
- goed
- Onderhoud buiten
- goed
Locatie
- Ligging
- bedrijventerrein
- Snelweg afrit
- 500 m - 1000 m
- Bushalte
- < 500 m
Bedrijfshal
- Oppervlakte
- 90 m²
- Vloerbelasting
- 1500 kg / m2
- Voorzieningen
- Betonvloer, Overhead deuren, Toilet
Kantoorruimte
- Oppervlakte
- 60 m²
- Verdiepingen
- 1
- Voorzieningen
- Inbouwarmaturen, Te openen ramen, Airco
Parkeren
- Niet overdekt
- 2






















