Omschrijving
Algemeen: Het betreft een vrijstaand bedrijfspand gelegen op het bedrijventerrein 'Lansinghage' te Zoetermeer. Het bedrijventerrein kenmerkt zich door diversiteit van aanwezige bedrijven en goede bereikbaarheid.
Bereikbaarheid: Het bedrijfspand is vanaf de snelweg A12 (Den Haag - Utrecht v.v.) via de Oostweg en de Lansinghageweg goed bereikbaar, alsmede vanuit Rotterdam/Delft via de provinciale weg N470. Ook met het openbaar vervoer is de bereikbaarheid goed met diverse bussen op loopafstand. Door de realisatie van het Station Lansingerland is deze bereikbaarheid sterk verbeterd. Station Lansingerland is een treinstation op de kruising van de verlengde Oosterheemlijn van RandstadRail en de spoorlijn Gouda - Den Haag op de grens van Bleiswijk en Zoetermeer.
Adres: Goudstraat 36, 2718 RC te Zoetermeer.
Kadastrale gegevens:
Gemeente: Zegwaard
Sectie : D
Nummer : 2105
Grootte : 1.036 m² (eigen grond)
Bouwjaar: Omstreeks 1989.
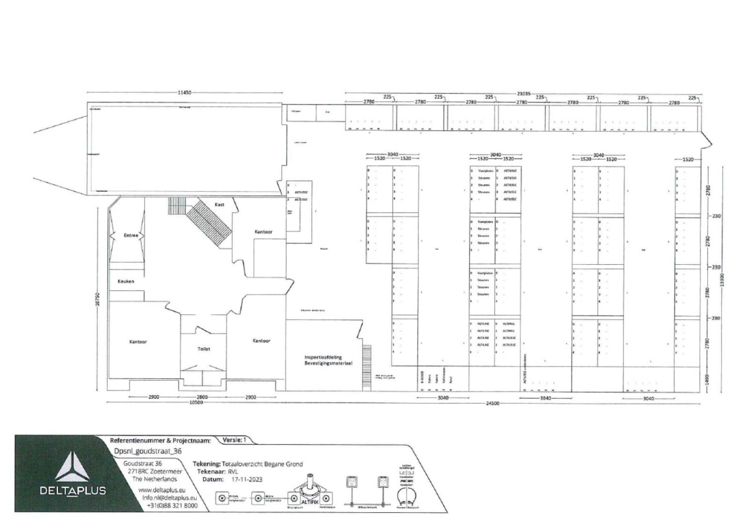
Metrage: Het bedrijfspand bestaat uit circa 660 m² b.v.o. en is als volgt verdeeld:
Begane grond
Circa 425 m² b.v.o. bedrijfsruimte/ magazijn
Circa 115 m² b.v.o. kantoorruimte
Eerste verdieping
Circa 120 m² b.v.o. kantoorruimte
Parkeren: Op eigen terrein zijn circa 6 parkeerplaatsen aanwezig. Met herindeling is dit aantal mogelijk uit te breiden met 1 à 2 parkeerplekken.
Energielabel: Volgt zo spoedig mogelijk.
Bestemming: Bestemmingsplan Kwadrant/vanTuyll sportpark/ Brinkhage/ Lansinghage, vastgesteld d.d. 16-08-2013.
Het perceel heeft de bestemming 'Bedrijventerrein' en is bestemd voor bedrijven tot en met milieucategorie 4,1 (zoals opgenomen in de "Lijst van Bedrijfsactiviteiten voor bedrijventerreinen Lansinghage, Brinkhage, Hoornerhage") en perifere detailhandel.
Opleveringsniveau: Het bedrijfspand wordt opgeleverd in huidige staat met o.a. de volgende voorzieningen:
Bedrijfsruimte/ magazijn
* betonvloer met draagvermogen van ca. 4.000 kg/m²;
* elektrisch bedienbare overheaddeur, ca. 2,5m x 3,5m (bxh);
* krachtstroom;
* verlichting;
* vrije hoogte circa 6,2m (onderkant spant);
* gasgestookte heater;
* circa 25m² magazijnkantoor (begane grond);
* circa 25m² vergaderruimte (eerste verdieping);
* ventilatoren;
* gedeeltelijk daglichttoetreding;
* vlaggenmast (buitenzijde).
Kantoorruimte
* entree/ tochtsluis;
* binnen zonwering (deels lamellen/ deels plissé);
* deels laminaat:
* dames-/herentoiletgroep begane grond en eerste verdieping;
* gedeeltelijk LED-verlichting;
* centrale verwarming;
* kozijnen voorzien van dubbel glas;
* te openen ramen (draai-/kiep);
* pantry voorzien van vaatwasser (Zanussi), magnetron met grill (Zanussi) en Quooker (Combi+);
* alarminstallatie;
* airconditioning (Mitsubishi).
Overige voorwaarden: Verkoper zal koper en zijn adviseur(s) in de gelegenheid stellen een due dilligence onderzoek uit te laten voeren. In dit kader zal verkoper koper onbeperkte toegang verlenen tot het verkochte. Koper zal het verkochte op de transportdatum in alle opzichten op basis van het uitgangspunt "as is where is" aanvaarden, waaronder onder meer wordt bedoeld de juridische, bouwkundige, technische, milieukundige en feitelijke toestand waarin het verkochte zich bevindt waarbij verkoper géén garanties verstrekt. Door de leeftijd van het gebouw liggen de eisen die men mag stellen aan de bouwkwaliteit aanzienlijk lager dan de eisen die tegenwoordig gelden voor vergelijkbare nieuwe objecten.
Verkoper staat niet in voor (ouderdoms-)gebreken aan het verkochte (zoals bijvoorbeeld fundering, trappen, centrale verwarming, leidingen van elektra, water, gas, riolering, vloeren gevels, dak, muren en dergelijke), alsmede slijtage. Verkoper heeft koper in de gelegenheid gesteld alle gewenste inspecties uit te (laten) voeren.
KOOPVOORWAARDEN
Vraagprijs: € 995.000,- k.k. (géén BTW van toepassing).
Transportdatum: In overleg.
Koopovereenkomst: NVM BOG koopakte.
Zekerheidsstelling: Bij ondertekening van de koopovereenkomst zal koper ter meerdere zekerheid voor de nakoming van zijn verplichtingen een waarborgsom ter grootte van 10 % van de koopsom voldoen op rekening van de notaris.
Notaris: Nader door koper te bepalen.
Kenmerken
Overdracht
- Vraagprijs
- € 995.000,- k.k.
- Status
- beschikbaar
- Aanvaarding
- in overleg
Bouw
- Type
- Bedrijfsruimte
- Soort bouw
- bestaande bouw
- Bouwjaar
- 1989
- Onderhoud binnen
- goed
- Onderhoud buiten
- goed
Locatie
- Ligging
- bedrijventerrein
- Snelweg afrit
- 500 m - 1000 m
- NS station
- 500 m - 1000 m
- Bushalte
- < 500 m
- Tramhalte
- 500 m - 1000 m
Bedrijfshal
- Oppervlakte
- 425 m²
- Perceelopp.
- 1.036 m²
- Vrije hoogte
- 620 cm
- Vloerbelasting
- 4000 kg / m2
- Voorzieningen
- Betonvloer, Heater, Krachtstroom, Overhead deuren, Pantry, Toilet
Kantoorruimte
- Oppervlakte
- 235 m²
- Verdiepingen
- 1
- Voorzieningen
- Te openen ramen, Airco
Parkeren
- Niet overdekt
- 6






















