Omschrijving
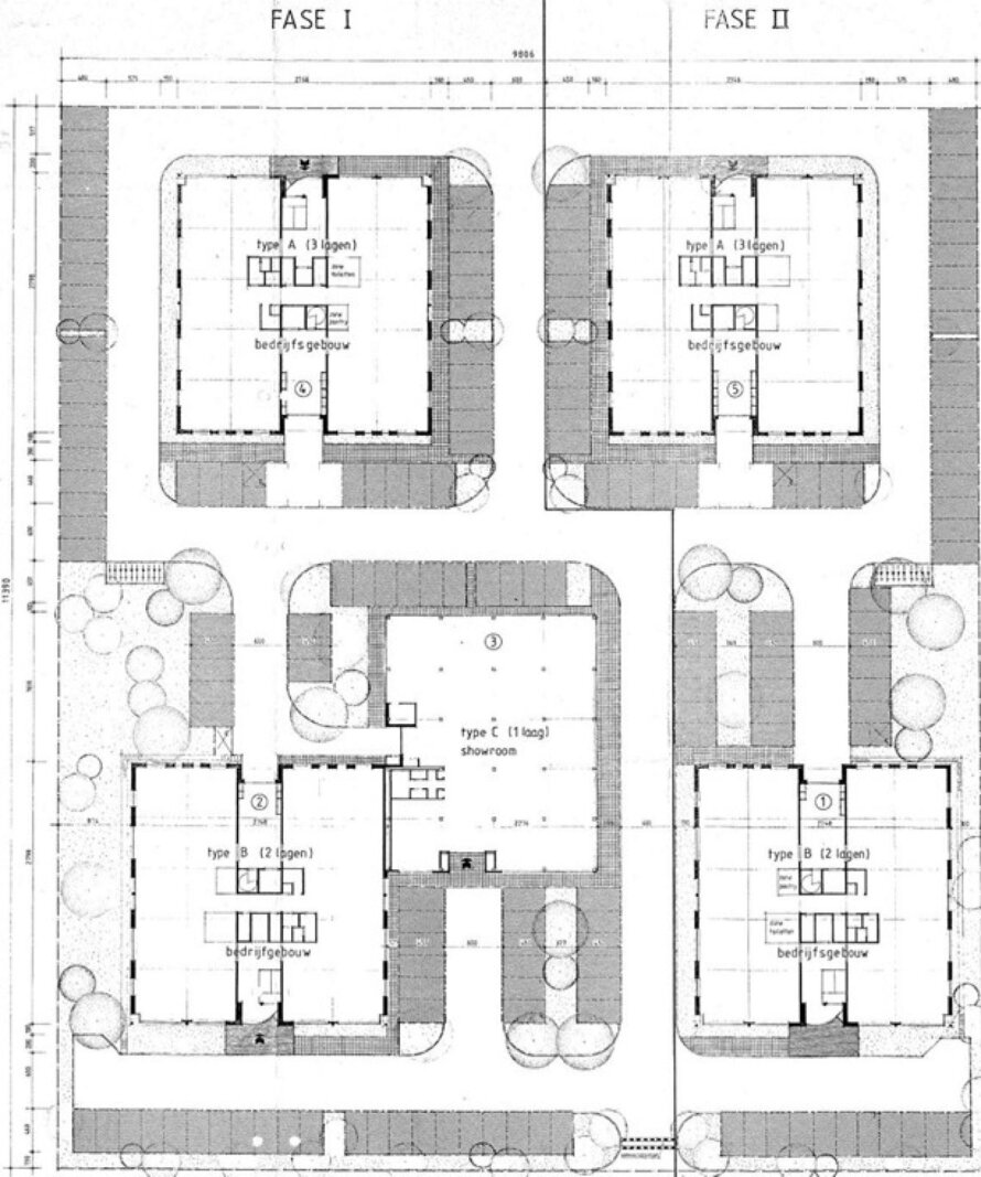
Algemeen: Het project "Penta Park" maakt onderdeel uit van het bedrijventerrein "Lansinghage" te Zoetermeer. Het bedrijventerrein kenmerkt zich door de diversiteit van de aanwezige bedrijven en zijn goede bereikbaarheid. Deze verzameling van een vijftal zelfstandige kantoor-/ expeditiegebouwen is zichtbaar vanaf de Rijksweg A12.
Bereikbaarheid: Het complex is vanaf de snelweg A-12 (Den Haag - Utrecht v.v.) eenvoudig bereikbaar. Ook met het openbaar vervoer is het terrein goed bereikbaar, diverse bussen stoppen op loopafstand met aansluiting op het NS Station Zoetermeer. Door de realisering van het Station Lansingerland is de bereikbaarheid van de locatie sterk verbeterd. Station Lansingerland is een treinstation op de kruising van de verlengde Oosterheemlijn van RandstadRail en de spoorlijn Gouda-Den Haag op de grens van Bleiswijk en Zoetermeer.
Adres: Chroomstraat 6, 2718 RR te Zoetermeer.
Kadastrale gegevens:
Gemeente: Zegwaard
Sectie: D
Nummer: 2970 (gedeeltelijk)
Metrage: In het project "Penta Park" zijn de navolgende huurmogelijkheden beschikbaar te weten:
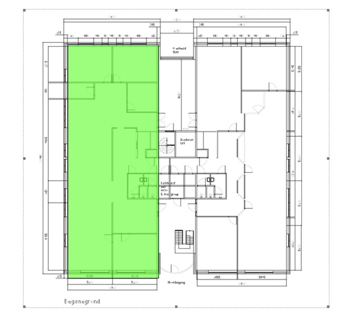
Gebouw Chroomstraat 6 (2-laags gebouw B)
Ca. 319 m² kantoorruimte op de begane grond
de oppervlakte is gemeten volgens NEN 2580.
Energielabel: Label A.
Parkeren: Op eigen parkeerterrein zijn minimaal 8 parkeerplaatsen voor verhuur beschikbaar.
Opleveringsniveau: Het object wordt opgeleverd in huidige staat en is voorzien van onder andere:
* eigen entree v.v. natuurstenen vloer;
* systeemplafond v.v. inbouw verlichtingsarmaturen;
* bestaande indeling d.m.v. systeemscheidingswanden;
* zonwerende en isolerende beglazing;
* te openen draai-/ kiepramen;
* dames- en heren toiletgroep;
* pantry;
* kabelgoten ten behoeve van data, elektra en telefoon;
* centrale verwarming d.m.v. radiatoren;
* vloerbedekking (éénmalige verstrekking);
* airconditioning;
* fietsenstalling (gemeenschappelijk).
HUURVOORWAARDEN
Huurprijs: € 85,-- p/m² per jaar te vermeerderen met de wettelijk verschuldigde omzetbelasting.
Huurprijs parkeren: € 480,-- per parkeerplaats per jaar te vermeerderen met de wettelijk verschuldigde omzetbelasting.
Huurtermijn: In overleg.
Opzegtermijn: 6 maanden voor expiratie huurovereenkomst per aangetekend schrijven of bij deurwaardersexploot.
In overleg, op korte termijn mogelijk.
Huurbetaling: Per kwartaal vooruit.
Huurprijsaanpassing: Jaarlijks, zal per huuringangsdatum, voor het eerst 12 maanden na huuringangsdatum, de huurprijs worden aangepast op basis van de wijziging van het maandprijsindexcijfer volgens de consumentenprijsindex (CPI) reeks alle huishoudens (2015 = 100), gepubliceerd door het Centraal Bureau voor de Statistiek (CBS).
Service- en energiekosten: De vaste bijdrage bedraagt € 45,- p/m² per jaar excl. BTW.
Huurovereenkomst: Standaard huurovereenkomst kantoorruimte en andere bedrijfsruimte in de zin van artikel 7:230a BW, vastgesteld door de Raad van Onroerende Zaken (ROZ) in januari 2015. Van deze huurovereenkomst maken deel uit de algemene bepalingen kantoorruimte en andere bedrijfsruimte in de zin van artikel 7:230a BW, welke op 17 februari 2015 gedeponeerd zijn bij de griffie van de rechtbank Den Haag en aldaar zijn ingeschreven onder nummer 15/21.
Zekerheidsstelling: Bij ondertekening van de huurovereenkomst, zal huurder een bankgarantie stellen ter grootte van drie maanden huurverplichting te vermeerderen met (eventuele) servicekosten en de wettelijk verschuldigde omzetbelasting.
Voorbehoud:
- positief kredietinformatierapport ter beoordeling van verhuurder;
- goedkeuring directie verhuurder.
Kenmerken
Overdracht
- Huurprijs
- € 85,- per vierkante meter p.j. (21% BTW)
- Servicekosten
- € 45,- per vierkante meter p.j.
- Status
- beschikbaar
- Aanvaarding
- in overleg, op korte termijn mogelijk.
Bouw
- Type
- Kantoorruimte
- Soort bouw
- bestaande bouw
- Bouwjaar
- 1988
- Onderhoud binnen
- goed
- Onderhoud buiten
- goed
- Energielabel
- A
Locatie
- Ligging
- bedrijventerrein
- Snelweg afrit
- 500 m - 1000 m
- Bushalte
- < 500 m
Kantoorruimte
- Oppervlakte
- 319 m²
- Verdiepingen
- 2
- Voorzieningen
- Inbouwarmaturen, Kamerindeling, Pantry, Systeemplafond, Te openen ramen, Toilet, Airco
- In units vanaf
- 319
- Turn key
- nee
Parkeren
- Niet overdekt
- 10
- Prijs niet overdekt
- € 480,-
























