Bleiswijkseweg 35
Omschrijving
Algemeen: Blue Coded IT Innovators en Rexel Nederland zoeken nieuwe buren! Te huur compleet gerenoveerde kantoorruimte op een zichtlocatie aan de Bleiswijkseweg te Zoetermeer op het Dutch Innovation Park. Het gebouw is gelegen direct naast Dutch Innovation Factory en Dutch Tech Campus. Binnenkort komt een kantoor etage op de 1e verdieping voor verhuur beschikbaar!
Het gebouw omvat 6 kantoorlagen bereikbaar met zowel de trap als de lift. De kantoorvloeren zijn om de kern flexibel indeelbaar.
Bereikbaarheid: De locatie heeft een aantal bijzondere kenmerken. Allereerst direct nabij de op- en afrit A-12 (Den Haag - Utrecht v.v.) alsmede N 209 (Bleiswijk - Zoetermeer) en N 470 (Rotterdam - Delft - Zoetermeer) gelegen. Diverse busverbindingen zorgen ervoor dat de locatie ook op deze wijze goed bereikbaar is.
Door de recente opening van station Lansingerland met Park & Ride terrein voor ca. 700 auto's is de bereikbaarheid van de locatie sterk verbeterd. Station Lansingerland is een treinstation op de kruising van de verlengde Oosterheemlijn van RandstadRail en de spoorlijn Gouda - Den Haag op de grens van Bleiswijk en Zoetermeer.
Adres: Bleiswijkseweg 35, 2712 PB te Zoetermeer.
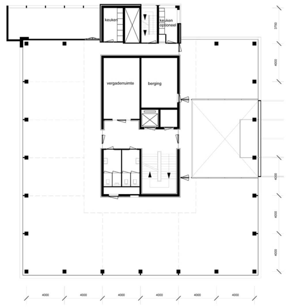
Metrage: Circa 590 m² v.v.o. kantoorruimte gelegen op de 1e verdieping.
Parkeren: Er zijn nog 8 parkeerplaatsen gelegen op eigen parkeerterrein beschikbaar.
Energielabel: Het onderhavige object beschikt over een energielabel A.
Opleveringsniveau: De totaal gerenoveerde kantoorruimte wordt in huidige staat opgeleverd en onder andere voorzien van:
* luchtbehandeling d.m.v. gebalanceerde ventilatie-systeem (4-voudige ventilatie) VRF systeem t.b.v. verwarmen en koelen;
* vloer afgewerkt met zand-cement dekvloer geschikt voor vloerbedekking;
* aansluiting wand / vloer d.m.v. hardhouten plint;
* systeemplafond v.v. LED-verlichting;
* plafondhoogte kantoor ca. 2.700 mm;
* wandgoot (120 mm) buitengevel per ca. 2,00m1 voorzien van dubbele wandcontactdoos;
* plafond v.v. toevoerroosters (afzuiging d.m.v. plenumventilatie);
* dames- / heren toiletgroepen;
* brandslanghaspels volgens bouwvoorschriften;
* pantryaansluiting (afvoer, elektra en water);
* noodverlichting / ontruimingsinstallatie conform de voorschriften;
* representatieve centrale entree (gemeenschappelijk);
* receptie;
* toegangsbeveiliging;
* huidige inbouwpakket (wanden, vloerafwerking, databekabeling etc.);
* liftinstallatie.
HUURVOORWAARDEN
Huurprijs: Vanaf € 130,-- p/m² per jaar te vermeerderen met de wettelijk verschuldigde omzetbelasting.
Huurprijs parkeren: € 500,-- per parkeerplaats per jaar te vermeerderen met de wettelijk verschuldigde omzetbelasting.
Huurtermijn: 5 jaar met de mogelijkheid de huurovereenkomst telkens met 5 jaar te verlengen.
Opzegtermijn: 12 maanden voor expiratie huurovereenkomst per aangetekend schrijven of bij deurwaardersexploot.
Oplevering: In overleg.
Huurbetaling: Per kwartaal vooruit te voldoen.
Huurprijsaanpassing: Jaarlijks, zal per huuringangsdatum, voor het eerst 12 maanden na huuringangsdatum, de huurprijs worden aangepast op basis van de wijziging van het maandprijsindexcijfer volgens de consumentenprijsindex (CPI) reeks alle huishoudens (2015 = 100), gepubliceerd door het Centraal Bureau voor de Statistiek (CBS).
Service- en energiekosten: € 35,-- p/m² per jaar, te vermeerderen met de wettelijk verschuldigde omzetbelasting, als voorschot te voldoen met naverrekening voor de kosten van onder andere:
* Levering gas, elektra, water;
* Glasbewassing buiten / gevelreiniging;
* Schoonmaak algemene ruimten;
* Onderhoud buitenterrein;
* Onderhoud brandblusmiddelen;
* Onderhoud gebouw gebonden installaties;
* Onderhoud ontruimingsinstallatie;
* Dakinspectie;
* Gemeentelijke belastingen;
* Ongediertebestrijding;
* 5% administratiekosten over de servicekosten.
Huurovereenkomst: Standaard huurovereenkomst kantoorruimte en andere bedrijfsruimte in de zin van artikel 7:230a BW, vastgesteld door de Raad van Onroerende Zaken (ROZ) in januari 2015. Van deze huurovereenkomst maken deel uit de algemene bepalingen kantoorruimte en andere bedrijfsruimte in de zin van artikel 7:230a BW, welke op 17 februari 2015 gedeponeerd zijn bij de griffie van de rechtbank Den Haag en aldaar zijn ingeschreven onder nummer 15/21.
Zekerheidsstelling: Bij ondertekening van de huurovereenkomst, zal huurder een bankgarantie stellen ter grootte van drie maanden huurverplichting te vermeerderen met (eventuele) servicekosten en de wettelijk verschuldigde omzetbelasting.
Voorbehoud:
- positief kredietinformatierapport ter beoordeling van verhuurder;
- goedkeuring directie verhuurder.
Kenmerken
Overdracht
- Huurprijs
- € 130,- per vierkante meter p.j. (21% BTW)
- Servicekosten
- € 35,- per vierkante meter p.j.
- Status
- beschikbaar
- Aanvaarding
- in overleg
Bouw
- Type
- Kantoorruimte
- Soort bouw
- bestaande bouw
- Bouwjaar
- 1981-1990
- Onderhoud binnen
- goed
- Onderhoud buiten
- goed
- Energielabel
- A
Locatie
- Ligging
- bedrijventerrein
- Snelweg afrit
- 500 m - 1000 m
- Bushalte
- < 500 m
- Tramhalte
- 500 m - 1000 m
Kantoorruimte
- Oppervlakte
- 590 m²
- Verdiepingen
- 1
- Voorzieningen
- Inbouwarmaturen, Kabelgoten, Liften, Systeemplafond, Toilet, Verwarming, Airco, Mechanische ventilatie
- In units vanaf
- 590
- Turn key
- nee
Parkeren
- Niet overdekt
- 8
- Prijs niet overdekt
- € 500,-


















