Ambachtsweg 41h
Omschrijving
Algemeen: Het zelfstandige bedrijfspand ligt centraal op het bedrijventerrein 'De Boezem' in de gemeente Pijnacker-Nootdorp. Het grenst aan het bestaande bedrijventerrein 'Boezem Oost' en ligt dichtbij de snelwegen A4, A12, A13 en A20. Nabij Katwijkerlaan en bedrijventerrein Boezem Oost.
Bereikbaarheid:
Per auto
De Oostelijke Randweg zorgt voor een directe verbinding tussen 'De Boezem' en de N470/N471 - de belangrijkste verbindingswegen in de regio. Via deze wegen zijn de snelwegen uitstekend bereikbaar voor uw klanten, leveranciers en medewerkers.
Per openbaar vervoer
Bedrijventerrein 'De Boezem' ligt op slechts enkele minuten loopafstand van een bushalte met directe en snelle busverbindingen naar Zoetermeer en Delft. Ook bent u zo bij de RandstadRailhalte Pijnacker-Centrum, waarmee u snel en comfortabel reist tussen Den Haag en Rotterdam.
Adres: Ambachtsweg 41H, 2641 KT te Pijnacker.
Kadastrale gegevens:
Gemeente: Pijnacker
Sectie: B
Nummer: 4544
Grootte: 254 m²
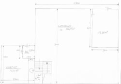
Metrage: Het object heeft een totaal vloeroppervlak van circa 245m², welke als volgt is verdeeld:
Begane grond
Circa 115m² bedrijfsruimte
Circa 20m² kantoorruimte
1e verdieping
Circa 60m² kantoorruimte
Circa 50m² magazijn-/ archiefruimte
De magazijnruimte op de eerste verdieping is zo nodig en indien wenselijk te gebruiken als kantoorruimte.
Parkeren: Bij het gehuurde horen 2-3 parkeerplaatsen gelegen op eigen terrein.
Bouwjaar: Omstreeks 1998.
Opleveringsniveau: Het bedrijfspand met kantoor zal in huidige staat worden opgeleverd en is onder andere voorzien van:
* entree;
* buitenverlichting;
* handmatig bedienbare overheaddeur (3,35m breed x 3,00m hoog;
* krachtstroom;
* indirect gestookte heater;
* stellingkasten;
* systeemplafond v.v. inbouw LED-verlichting;
* keuken-/ kantineruimte;
* toilet;
* te openen ramen;
* huidige vloerafwerking (1e verdieping);
* afgewerkte wanden (1e verdieping);
* airconditioning (1e verdieping);
* centrale verwarming middels radiatoren;
* mechanische ventilatie.
HUURVOORWAARDEN
Huurprijs: € 2.500,-- per maand te vermeerderen met de wettelijk verschuldigde omzetbelasting.
Huurtermijn: 5 jaar met de mogelijkheid de huurovereenkomst telkens met 5 jaar te verlengen. Kortere huurperioden zijn bespreekbaar.
Opzegtermijn: 12 maanden voor expiratie huurovereenkomst per aangetekend schrijven of bij deurwaardersexploot.
Oplevering: In overleg, op korte termijn mogelijk.
Huurbetaling: Per maand vooruit.
Huurprijsaanpassing: Jaarlijks, zal per huuringangsdatum, voor het eerst 12 maanden na huuringangsdatum, de huurprijs worden aangepast op basis van de wijziging van het maandprijsindexcijfer volgens de consumentenprijsindex (CPI) reeks alle huishoudens (2015 = 100), gepubliceerd door het Centraal Bureau voor de Statistiek (CBS).
Service- en energiekosten: Het gehuurde is geheel zelfstandig en er zijn geen bijkomende leveringen en diensten door of vanwege verhuurder van toepassing. Huurder dient zelf zorg te dragen voor het sluiten van leveringscontracten voor gas, water en elektra bij de desbetreffende nutsbedrijven.
Huurovereenkomst: Standaard huurovereenkomst kantoorruimte en andere bedrijfsruimte in de zin van artikel 7:230a BW, vastgesteld door de Raad van Onroerende Zaken (ROZ) in januari 2015. Van deze huurovereenkomst maken deel uit de algemene bepalingen kantoorruimte en andere bedrijfsruimte in de zin van artikel 7:230a BW, welke op 17 februari 2015 gedeponeerd zijn bij de griffie van de rechtbank Den Haag en aldaar zijn ingeschreven onder nummer 15/21.
Zekerheidsstelling: Bij ondertekening van de huurovereenkomst, zal huurder een bankgarantie stellen ter grootte van drie maanden huurverplichting te vermeerderen met de wettelijk verschuldigde omzetbelasting.
Voorbehoud:
- positief kredietinformatierapport ter beoordeling van verhuurder;
- goedkeuring directie verhuurder.
KOOPVOORWAARDEN
Vraagprijs: € 399.000,- k.k. (géén BTW van toepassing).
Transportdatum: In overleg.
Koopakte: Standaard NVM BOG koopakte.
Overige voorwaarden: Verkoper zal koper en zijn adviseur(s) in de gelegenheid stellen een due dilligence onderzoek uit te laten voeren. In dit kader zal verkoper koper onbeperkte toegang verlenen tot het verkochte. Koper zal het verkochte op de transportdatum in alle opzichten op basis van het uitgangspunt "as is where is" aanvaarden, waaronder onder meer wordt bedoeld de juridische, technische, milieukundige en feitelijke toestand waarin het verkochte zich bevindt waarbij verkoper géén garanties verstrekt.
Verkoper staat niet in voor (ouderdoms-)gebreken aan het verkochte (zoals bijvoorbeeld fundering, trappen, centrale verwarming, leidingen van elektra, water, gas, riolering, vloeren gevels, muren, en dergelijke), alsmede slijtage. Verkoper heeft koper in de gelegenheid gesteld een technisch/ bouwkundige inspectie uit te voeren.
Notaris: Nader door koper te bepalen.
Zekerheidsstelling: Bij ondertekening van de koopovereenkomst zal koper ter meerdere zekerheid voor de nakoming van zijn verplichtingen een waarborgsom ter grootte van 10 % van de koopsom voldoen op rekening van de notaris.
Kenmerken
Overdracht
- Vraagprijs
- € 399.000,- k.k.
- Huurprijs
- € 2.500,- p.m. (21% BTW)
- Status
- beschikbaar
- Aanvaarding
- in overleg, op korte termijn mogelijk.
Bouw
- Type
- Bedrijfsruimte
- Soort bouw
- bestaande bouw
- Bouwjaar
- 1998
- Onderhoud binnen
- goed
- Onderhoud buiten
- goed
Locatie
- Ligging
- bedrijventerrein
- Bushalte
- 500 m - 1000 m
- Metrohalte
- 1000 m - 1500 m
Bedrijfshal
- Oppervlakte
- 165 m²
- Perceelopp.
- 254 m²
- Voorzieningen
- Betonvloer, Heater, Krachtstroom, Overhead deuren, Pantry, Toilet, Mechanische ventilatie
Kantoorruimte
- Oppervlakte
- 80 m²
- Verdiepingen
- 2
- Voorzieningen
- Inbouwarmaturen, Te openen ramen
Parkeren
- Niet overdekt
- 3











