Omschrijving
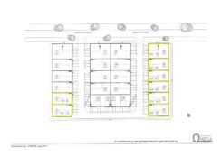
Algemeen: Project "Omega" bestaat uit 24 bedrijfsunits gelegen op het bedrijvenpark 'Prisma' te Bleiswijk. Het bedrijvenpark kenmerkt zich door hoogwaardige bebouwing, een combinatie van een ruime vestigingsmogelijkheid (milieucategorie 4) en goede parkeermogelijkheden op eigen terrein. De units worden compleet opgeleverd en zijn standaard voorzien van een gedeeltelijke verdiepingsvloer, bereikbaar middels een interne verbindingstrap. Op korte termijn komt nu één bedrijfspand met kantoor voor verhuur beschikbaar.
Bereikbaarheid:
Eigen vervoer
Het bedrijvenpark 'Prisma' is door de direct ligging aande rijksweg A-12 (Den Haag - Utrecht) uitstekend bereikbaar. Tevens is bedrijvenpark Prisma bereikbaar middels de provinciale weg N-209 (Bleiswijk- Rotterdam) en de N-470 (Zoetermeer - Delft - Rotterdam).
Openbaar vervoer
Het bedrijventerrein 'Prisma' is reeds aangesloten op de RandstadRail (Zoetermeer - Den Haag). Inmiddels is ook het nieuwe station Lansingerland (Bleiswijk Zoetermeer) in gebruik genomen, waardoor de bereikbaarheid van en naar Utrecht en Rotterdam verder is geoptimaliseerd.
Adres: Amethistweg 43, 2665 NT te Bleiswijk
Metrage:
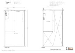
Begane grond ca. 218 m²
1e verdieping ca. 70 m²
4 parkeerplaatsen
Energielabel: Label A.
Opleveringsniveau: De bedrijfsunits worden geheel compleet opgeleverd en zijn onder andere voorzien van de navolgende voorzieningen:
Constructie:
· staalconstructie;
· geïsoleerde gevelbeplating in de kleur antraciet grijs (ter plaatse van de ontsluiting van het bedrijvenpark alsmede bij de entrees van de bedrijfsruimten in de kleur warm grijs).
Dak:
· staalplaten dak voorzien van isolatie en bitumineuze dakbedekking;
· isolatiewaarde (Rc-waarde) van 2,5 m² K/W;
· dakrand afgewerkt met een aluminium dakkap.
Begane grondvloer:
· monolithisch afgewerkte gestorte betonvloer, ingestrooid met kwarts ten behoeve van de slijtvastheid;
· maximale vloerbelasting van 2.000 kg/m²;
· totale isolatiewaarde zal Rc = 2,5 m² K/W bedragen;
· vrije hoogte ca. 6,5 m.
Verdiepingsvloer:
· kanaalplaatvloer v.v. cementdekvloer;
· voorzien van systeemwand als afscheiding naar de bedrijfsruimte (gesausd);
· maximale vloerbelasting van 250 kg/m²;
· vrije hoogte ca 3,2 m.
Intern:
· dichte vurenhouten trap naar verdiepingsvloer;
· wanden en deuren conform tekening;
· systeemplafond v.v. energiezuinige verlichting;
· de bedrijfsruimtescheidende wanden zijn opgetrokken uit kalkzandsteen vellingblokken;
· gecertificeerde alarminstallatie;
· handbediende overheaddeur van ca. 4,0 m. breed x 4,2 m. hoog;
· meterkast nabij de hoofdingang van de unit v.v. complete elektrische installatie met uitgebreide groepenkast en 40A hoofdschakelaar;
· complete sanitaire installatie v.v. toilet met afzuiginstallatie en fontein (betegeld);
· pantry op de begane grond;
· pantry en toilet aansluitpunt op de verdieping;
· energiezuinige verlichting;
· airconditioning kantoorruimte;
· complete verwarming en warmwaterinstallatie v.v. energiezuinige direct gestookte heater in de bedrijfsruimte en HR combiketel voor het kantoorgedeelte compleet met leidingnet en radiatoren.
· elektravoorziening 3 x 25 Ampère;
· gasvoorziening tot G6;
· watervoorziening is Qn 1,5 m³.
Terreinafwerking:
Het terrein is bestraat, geschikt voor vrachtverkeer met een aslast van 120 kN (12 ton), verkeersklasse 2a volgens de VNC- methode, uitgevoerd in betonklinkers in twee kleuren.
HUURVOORWAARDEN
Huurprijs: € 3.000,- per maand te vermeerderen met de wettelijk verschuldigde omzetbelasting.
Huurtermijn: 5 jaar met de mogelijkheid de huurovereenkomst 5 jaar te verlengen.
Opzegtermijn: 12 maanden voor expiratie huurovereenkomst per aangetekend schrijven of bij deurwaardersexploot.
Oplevering: In overleg, op korte termijn mogelijk.
Huurbetaling: Per kwartaal vooruit.
Huurprijsaanpassing: Jaarlijks, zal per huuringangsdatum, voor het eerst 12 maanden na huuringangsdatum, de huurprijs worden aangepast op basis van de wijziging van het maandprijsindexcijfer volgens de consumentenprijsindex (CPI) reeks alle huishoudens (2015 = 100), gepubliceerd door het Centraal Bureau voor de Statistiek (CBS).
Servicekosten: De bedrijfspanden zijn geheel zelfstandig, er zijn geen bijkomende leveringen en diensten door of vanwege verhuurder van toepassing behoudens de doorbelasting van glasbewassing, gevelreiniging, onderhoud buitenverlichting, beheervergoeding VVE Bedrijvenpark Omega te Bleiswijk en terreinonderhoud.
Huurder dient zelf zorg te dragen voor de aanvraag en levering van gas, water en elektra en het afsluiten van onderhoudscontracten voor de installaties.
Huurovereenkomst: Standaard huurovereenkomst kantoorruimte en andere bedrijfsruimte in de zin van artikel 7:230a BW, vastgesteld door de Raad van Onroerende Zaken (ROZ) in januari 2015. Van deze huurovereenkomst maken deel uit de algemene bepalingen kantoorruimte en andere bedrijfsruimte in de zin van artikel 7:230a BW, welke op 17 februari 2015 gedeponeerd zijn bij de griffie van de rechtbank Den Haag en aldaar zijn ingeschreven onder nummer 15/21.
Zekerheidsstelling: Bij ondertekening van de huurovereenkomst, zal huurder een bankgarantie stellen ter grootte van drie maanden huurverplichting te vermeerderen met (eventuele) servicekosten en de wettelijk verschuldigde omzetbelasting.
Voorbehoud :
- positief kredietinformatierapport ter beoordeling van verhuurder;
- goedkeuring directie verhuurder.
Kenmerken
Overdracht
- Huurprijs
- € 3.000,- p.m. (21% BTW)
- Status
- beschikbaar
- Aanvaarding
- in overleg, op korte termijn mogelijk.
Bouw
- Type
- Bedrijfsruimte
- Soort bouw
- bestaande bouw
- Bouwjaar
- 2008
- Onderhoud binnen
- goed
- Onderhoud buiten
- goed
- Energielabel
- A
Locatie
- Ligging
- bedrijventerrein
- Snelweg afrit
- 500 m - 1000 m
- Bushalte
- 500 m - 1000 m
Bedrijfshal
- Oppervlakte
- 218 m²
- Vrije hoogte
- 650 cm
- Vloerbelasting
- 2000 kg / m2
- Voorzieningen
- Betonvloer, Heater, Overhead deuren, Pantry, Toilet, Airco, Mechanische ventilatie
Kantoorruimte
- Oppervlakte
- 70 m²
- Verdiepingen
- 2
- Voorzieningen
- Inbouwarmaturen, Te openen ramen
Parkeren
- Niet overdekt
- 4














