Prismalaan West 27
Omschrijving
Algemeen: Het betreft een vrijstaand compleet ingericht kantoor-/ bedrijfspand met ruim buitenterrein, welke strategisch is gelegen op de hoek van het bedrijvenpark 'Prisma' te Bleiswijk aan de rand van Zoetermeer, waar onder andere gerenommeerde bedrijven als Hoogvliet, Aldi, Rexel Nederland, Tool Station Europe en Hello Fresh inmiddels zijn gevestigd (zie voor meer informatie tevens de website bleizo.nl).
Bereikbaarheid:
Eigen vervoer
Het bedrijvenpark 'Prisma' is door zijn ligging direct aan de rijksweg A-12 (Den Haag - Utrecht v.v.) en verbindingswegen
N-209 en N-470 uitstekend bereikbaar.
Openbaar vervoer
Het RandStadRail station Zoetermeer, Van Tuyllpark is direct tegenover het object gelegen. Het station Lansingerland - Zoetermeer is eveneens gelegen op loopafstand en betreft een spoorwegstation op de kruising van het verlengde Oosterheemtracé van Randstad Rail en de spoorlijn Gouda _ Den Haag op de grens van Bleiswijk en Zoetermeer. Met 700 P+R plekken is het tevens een ideale overstaplocatie.
Adres: Prismalaan West 27, 2665 PC te Bleiswijk.
Gemeente: Bleiswijk
Sectie: A
Nummer: 870
Grootte: 754 m² (eigen grond)
Bouwjaar: Omstreeks 2006.
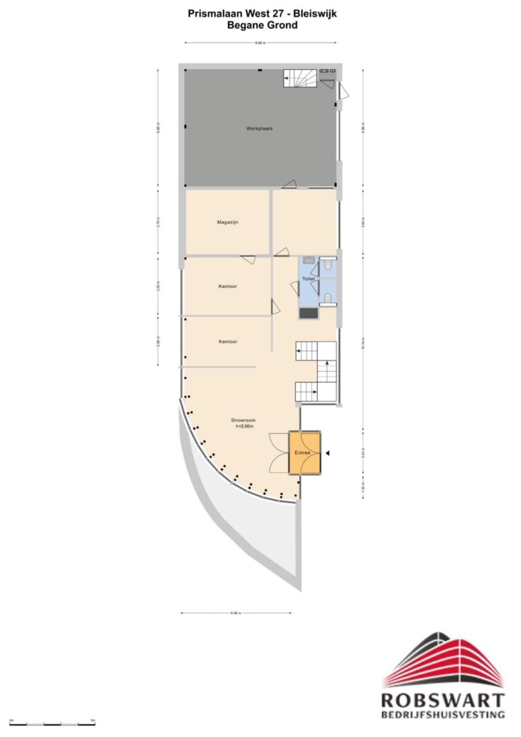
Metrage: Het kantoor-/bedrijfspand bestaat uit totaal circa 450m² b.v.o. als volgt verdeeld:
Circa 360m² kantoor-/ showroomruimte verdeeld over de begane grond en eerste verdieping, circa 60m² bedrijfshal en circa 30m² entresolvloer.
de oppervlakte is gemeten volgens NEN 2580.
Parkeren: Op eigen terrein zijn circa 16 parkeerplaatsen beschikbaar. Tevens zijn ruime parkeermogelijkheden op het openbare terrein.
Bestemming: Het pand heeft bestemming 'Bedrijventerrein', met de aanduiding 'bedrijven tot en met milieucategorie 4.1' als opgenomen in de staat van bedrijfsactiviteiten, als onderdeel van deze regels.
Energielabel: Label B.
Opleveringsniveau: Het kantoor-/bedrijfspand wordt opgeleverd in huidige staat en is voorzien van onder andere:
* entree via tochtsluis;
* systeemplafond v.v. LED- verlichting;
* PVC- vloer (visgraat motief);
* hardhouten trap naar 1e verdieping;
* aluminium kozijnen v.v. HR++ glas;
* centrale verwarming middels radiatoren v.v. thermostatische radiatorkranen;
* huidige indeling d.m.v. (systeem)scheidingswanden;
* archiefruimte;
* (binnen) zonwering;
* toiletgroepen (begane grond en 1e verdieping);
* airconditioning en luchtgordijn;
* kabelgoten v.v. elektrapunten en databekabeling;
* pantry begane grond en eerste verdieping;
* bedrijfsruimte met trap naar entresolvloer;
* elektrisch bedienbare overheaddeur;
* lichtstraten;
* heater;
* elektrisch bedienbare toegangspoort op het buitenterrein;
* ontruimingsinstallatie en brandblusmiddelen.
HUURVOORWAARDEN
Huurprijs: € 78.000,- per jaar te vermeerderen met de wettelijk verschuldigde omzetbelasting.
Huurtermijn: 5 (vijf) jaar met de mogelijkheid de huurovereenkomst telkens met 5 (vijf) jaar te verlengen.
Opzegtermijn: 12 maanden voor expiratie huurovereenkomst per aangetekend schrijven of bij deurwaardersexploot.
Oplevering: In overleg, op korte termijn mogelijk.
Huurbetaling: Per kwartaal vooruit.
Huurprijsaanpassing: Jaarlijks, zal per huuringangsdatum, voor het eerst 12 maanden na huuringangsdatum, de huurprijs worden aangepast op basis van de wijziging van het maandprijsindexcijfer volgens de consumentenprijsindex (CPI) reeks alle huishoudens (2015 = 100), gepubliceerd door het Centraal Bureau voor de Statistiek (CBS).
Service- en energiekosten: Het object is geheel zelfstandig en er zijn geen bijkomende leveringen en diensten door of vanwege verhuurder van toepassing.
Huurovereenkomst: Standaard huurovereenkomst kantoorruimte en andere bedrijfsruimte in de zin van artikel 7:230a BW, vastgesteld door de Raad van Onroerende Zaken (ROZ) in januari 2015. Van deze huurovereenkomst maken deel uit de algemene bepalingen kantoorruimte en andere bedrijfsruimte in de zin van artikel 7:230a BW, welke op 17 februari 2015 gedeponeerd zijn bij de griffie van de rechtbank Den Haag en aldaar zijn ingeschreven onder nummer 15/21.
Zekerheidsstelling: Bij ondertekening van de huurovereenkomst, zal huurder een bankgarantie stellen ter grootte van drie maanden huurverplichting te vermeerderen met (eventuele) servicekosten en de wettelijk verschuldigde omzetbelasting.
Voorbehoud:
- positief kredietinformatierapport ter beoordeling van verhuurder;
- goedkeuring directie verhuurder.
KOOPVOORWAARDEN
Vraagprijs: € 1.095.000,- k.k. (géén BTW van toepassing).
Transportdatum: In overleg, op korte termijn mogelijk.
Koopovereenkomst: NVM BOG koopakte.
Overige voorwaarden: Verkoper zal koper en zijn adviseur(s) in de gelegenheid stellen een due dilligence onderzoek uit te laten voeren. In dit kader zal verkoper koper onbeperkte toegang verlenen tot het verkochte. Koper zal het verkochte op de transportdatum in alle opzichten op basis van het uitgangspunt "as is where is" aanvaarden, waaronder onder meer wordt bedoeld de juridische, technische, milieukundige en feitelijke toestand waarin het verkochte zich bevindt waarbij verkoper géén garanties verstrekt.
Verkoper staat niet in voor (ouderdoms-)gebreken aan het verkochte (zoals bijvoorbeeld fundering, trappen, centrale verwarming, leidingen van elektra, water, gas, riolering, vloeren gevels, muren, en dergelijke), alsmede slijtage. Verkoper heeft koper in de gelegenheid gesteld een technisch/ bouwkundige inspectie uit te voeren.
Bijdrage parkmanagement: € 715,35 per jaar te vermeerderen met de wettelijk verschuldigde omzetbelasting.
Zekerheidsstelling: Bij ondertekening van de koopovereenkomst zal koper ter meerdere zekerheid voor de nakoming van zijn verplichtingen een waarborgsom ter grootte van 10 % van de koopsom voldoen op rekening van de notaris.
Notaris: Nader door verkoper te bepalen.
Kenmerken
Overdracht
- Vraagprijs
- € 1.095.000,- k.k.
- Huurprijs
- € 78.000,- p.j. (21% BTW)
- Status
- beschikbaar
- Aanvaarding
- in overleg, op korte termijn mogelijk.
Bouw
- Type
- Kantoorruimte
- Soort bouw
- bestaande bouw
- Bouwjaar
- 2006
- Energielabel
- B
Locatie
- Ligging
- bedrijventerrein
- Snelweg afrit
- < 500 m
- NS station
- < 500 m
- Bushalte
- < 500 m
- Tramhalte
- < 500 m
Kantoorruimte
- Oppervlakte
- 450 m²
- Perceelopp.
- 754 m²
- Verdiepingen
- 2
- Voorzieningen
- Inbouwarmaturen, Kabelgoten, Kamerindeling, Pantry, Systeemplafond, Toilet, Verwarming, Airco
- In units vanaf
- 450
- Turn key
- nee
Parkeren
- Niet overdekt
- 16





























