Omschrijving
Het bedrijfspand is gelegen op het bedrijvenpark 'Ruyven' direct aan de A-13 ter hoogte van Delft. Op het bedrijventerrein zijn onder andere gevestigd het distributiecentrum van Ahold, Gall & Gall, Grolsch en vele andere gerenommeerde bedrijven.
Bereikbaarheid: Door zijn ligging aan de direct aan nieuwe provinciale weg N- 470 (Delft - Zoetermeer - Rotterdam) en de Rijksweg A-13 (Den Haag - Rotterdam v.v.) is het object uitstekend bereikbaar.
Adres: Overslagweg 5-5a, 2645 EK Delfgauw.
Kadastrale gemeente: Pijnacker
Sectie: H
Nummer: 1249
Grootte: 13 are 40 centiare (ca. 1.340 m²)
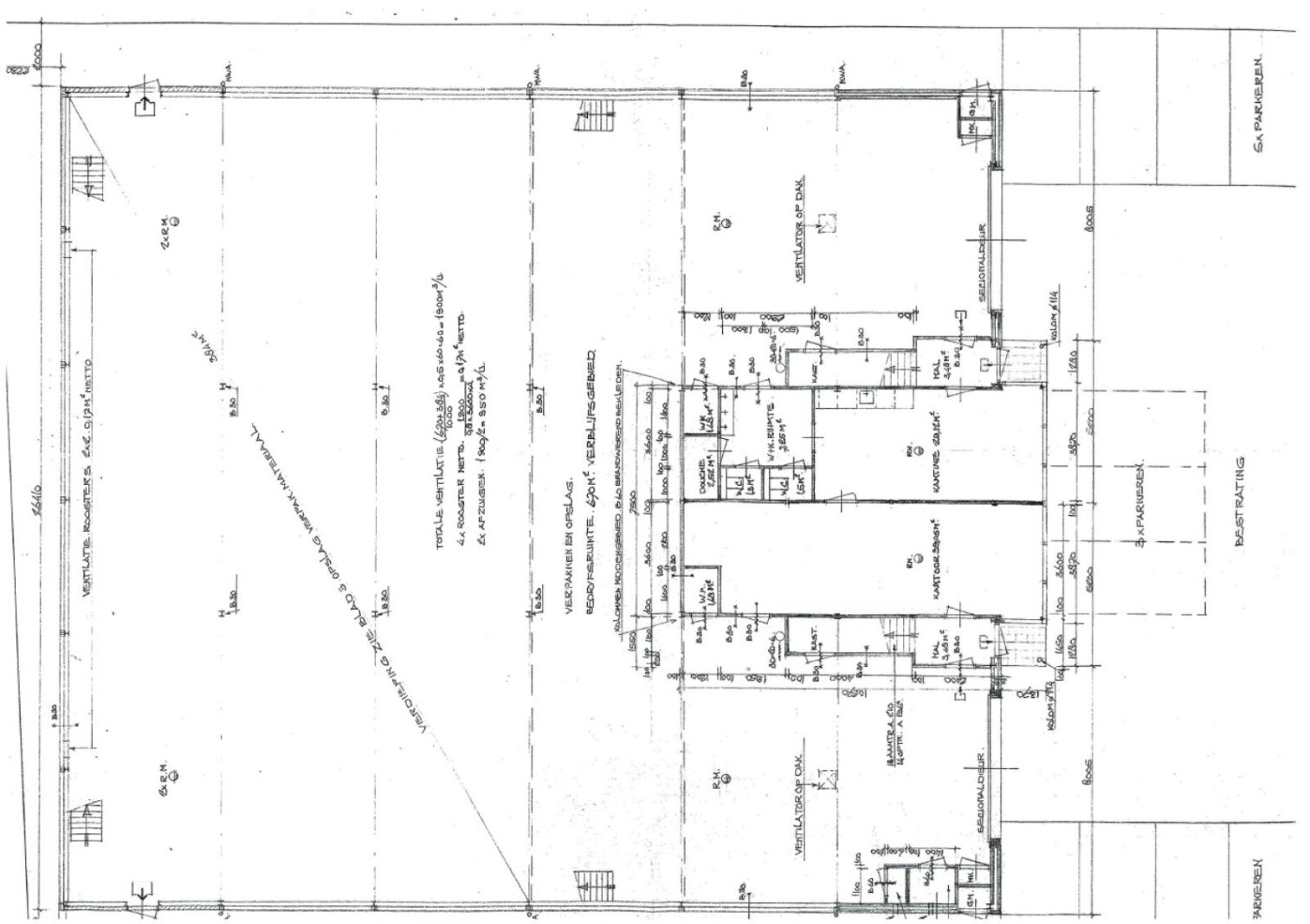
Het object heeft een totaal vloeroppervlak van circa 855 m², welke als volgt is verdeeld:
Begane grond
circa 680 m² bedrijfsruimte op de begane grond
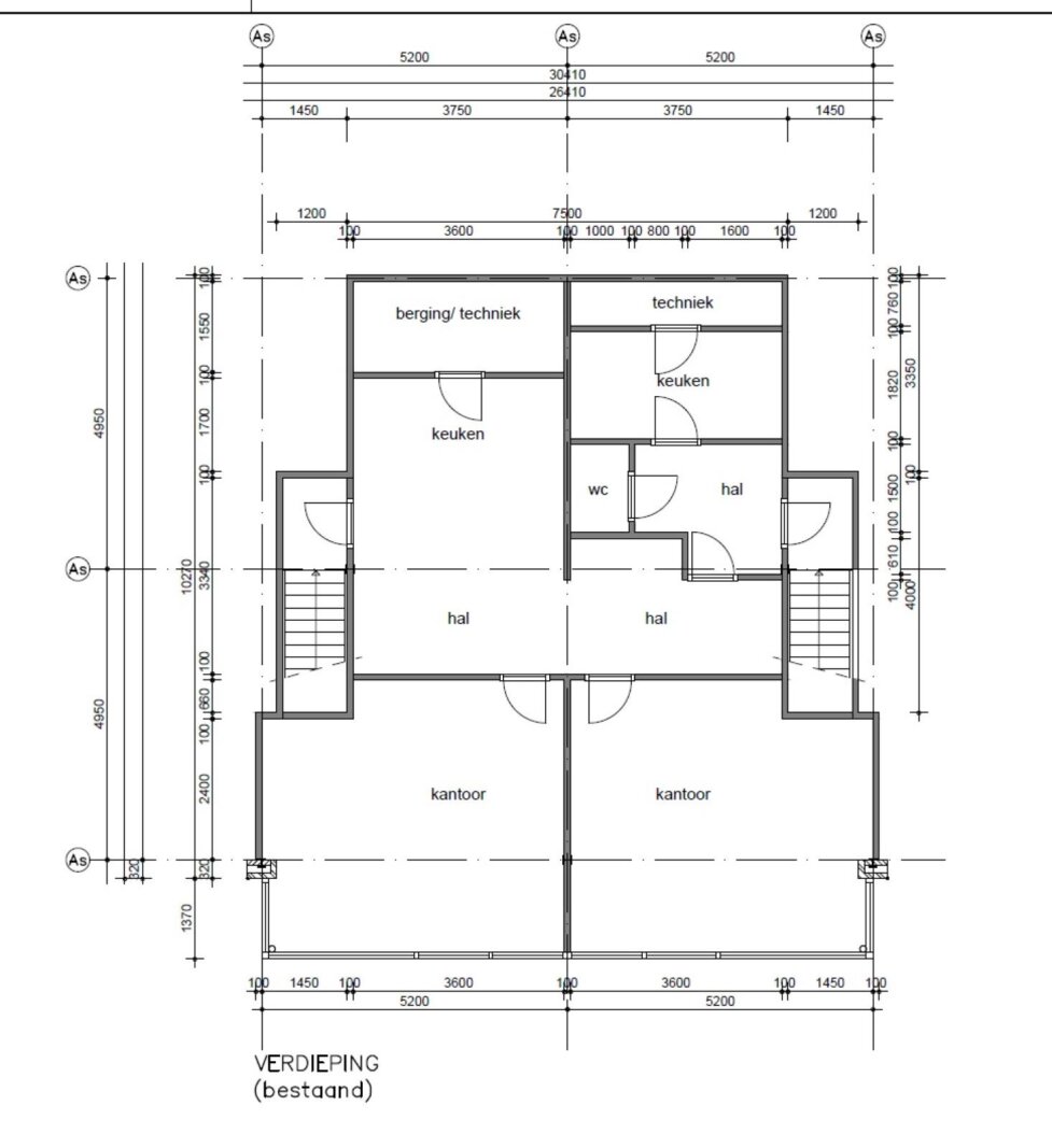
circa 175 m² kantoorruimte verdeeld over de begane grond en eerste verdieping
De bedrijfsruimte is voorbereid op het aanbrengen van een entresolvloer van circa 385 m²!
Parkeren: Circa 10 parkeerplaatsen op eigen terrein.
Bestemming: De voor ' Bedrijventerrein' aangewezen gronden zijn bestemd voor:
Het uitoefenen van bedrijfsmatige activiteiten die staan vermeld in de categorieën 1 tot en met 3.2 van de Lijst van bedrijfsactiviteiten.
Bouwjaar: Omstreeks 2004.
Opleveringsniveau:
Bedrijfsruimte
De bedrijfsruimte is voorzien van onder andere:
- glad afgewerkte betonvloer met een draagvermogen van ca. 1.500 kg/ m²;
- twee elektrisch bedienbare overheaddeuren (ca. 4,5m x 4,2m);
- vrije hoogte ca. 6,7 m;
- industriële verlichting;
- voldoende krachtstroomaansluitpunten;
- vloerverwarming;
- brandslanghaspels;
- ruim voldoende daglichttoetreding;
- mogelijkheid voor loopkat.
Kantoorruimte
De kantoorruimte is compleet ingericht en voorzien van onder andere:
- tweetal luxe pantry's (begane grond en verdieping);
- alarminstallatie;
- hardhouten kozijnen v.v. isolatieglas;
- tweetal hardhouten trappen;
- tegelvloer;
- doucheruimte;
- dames- en herentoiletgroep op de begane grond;
- mechanische ventilatie;
- verwarming door middel van radiatoren en vloerverwarming;
- te openen ramen;
- rookmelders;
- toilet op de verdieping;
- kabelgoten voorzien van databekabeling (utp cat. 5e);
- afgewerkte wanden;
- verlichting.
HUURVOORWAARDEN
Huurprijs: € 7.950,-- per maand te vermeerderen met de wettelijk verschuldigde omzetbelasting.
Huurtermijn: 5 jaar met de mogelijkheid de huurovereenkomst 5 jaar te verlengen.
Opzegtermijn: 12 maanden voor expiratie huurovereenkomst per aangetekend schrijven of bij deurwaardersexploot.
Oplevering: Naar huidige verwachting omstreeks 1e kwartaal 2026..
Huurbetaling: Per maand vooruit.
Huurprijsaanpassing: Jaarlijks, zal per huuringangsdatum, voor het eerst 12 maanden na huuringangsdatum, de huurprijs worden aangepast op basis van de wijziging van het maandprijsindexcijfer volgens de consumentenprijsindex (CPI) reeks alle huishoudens (2015 = 100), gepubliceerd door het Centraal Bureau voor de Statistiek (CBS).
Service- en energiekosten: € 150,- per maand te vermeerderen met de wettelijk verschuldigde omzetbelasting voor de kosten van onder andere:
- onderhoud installaties (cv- installatie/ airco);
- onderhoud overheaddeuren;
- onderhoud brandblusmiddelen;
- onderhoud buitenterrein.
Het gehuurde is verder geheel zelfstandig en er zijn geen bijkomende leveringen en diensten door of vanwege verhuurder van toepassing. Huurder dient zelf zorg te dragen voor het sluiten van leveringscontracten voor gas, water en elektra bij de desbetreffende nutsbedrijven.
Huurovereenkomst: Standaard huurovereenkomst kantoorruimte en andere bedrijfsruimte in de zin van artikel 7:230a BW, vastgesteld door de Raad van Onroerende Zaken (ROZ) in januari 2015. Van deze huurovereenkomst maken deel uit de algemene bepalingen kantoorruimte en andere bedrijfsruimte in de zin van artikel 7:230a BW, welke op 17 februari 2015 gedeponeerd zijn bij de griffie van de rechtbank Den Haag en aldaar zijn ingeschreven onder nummer 15/21.
Zekerheidsstelling: Bij ondertekening van de huurovereenkomst, zal huurder een bankgarantie stellen ter grootte van drie maanden huur- verplichting te vermeerderen met (eventuele) servicekosten en de wettelijk verschuldigde omzetbelasting.
Voorbehoud:
- positief kredietinformatierapport ter beoordeling van verhuurder;
- goedkeuring verhuurder.
Kenmerken
Overdracht
- Huurprijs
- € 7.950,- p.m. (21% BTW)
- Servicekosten
- € 150,- p.m.
- Status
- Verhuurd
- Aanvaarding
- in overleg, Naar huidige verwachting omstreeks 1e kwartaal 202
Bouw
- Type
- Bedrijfsruimte
- Soort bouw
- bestaande bouw
- Bouwjaar
- 2004
- Onderhoud binnen
- goed
- Onderhoud buiten
- goed
- Energielabel
- A+
Locatie
- Ligging
- bedrijventerrein
- Snelweg afrit
- 1000 m - 1500 m
Bedrijfshal
- Oppervlakte
- 680 m²
- Perceelopp.
- 1.340 m²
- Vrije hoogte
- 670 cm
- Vloerbelasting
- 1500 kg / m2
- Voorzieningen
- Betonvloer, Krachtstroom, Overhead deuren, Pantry, Toilet
Kantoorruimte
- Oppervlakte
- 175 m²
- Verdiepingen
- 2
- Voorzieningen
- Te openen ramen, Mechanische ventilatie
Parkeren
- Niet overdekt
- 10























